Authentieke kunststof sierbalken
Ontdek onze authentieke Sierbalken
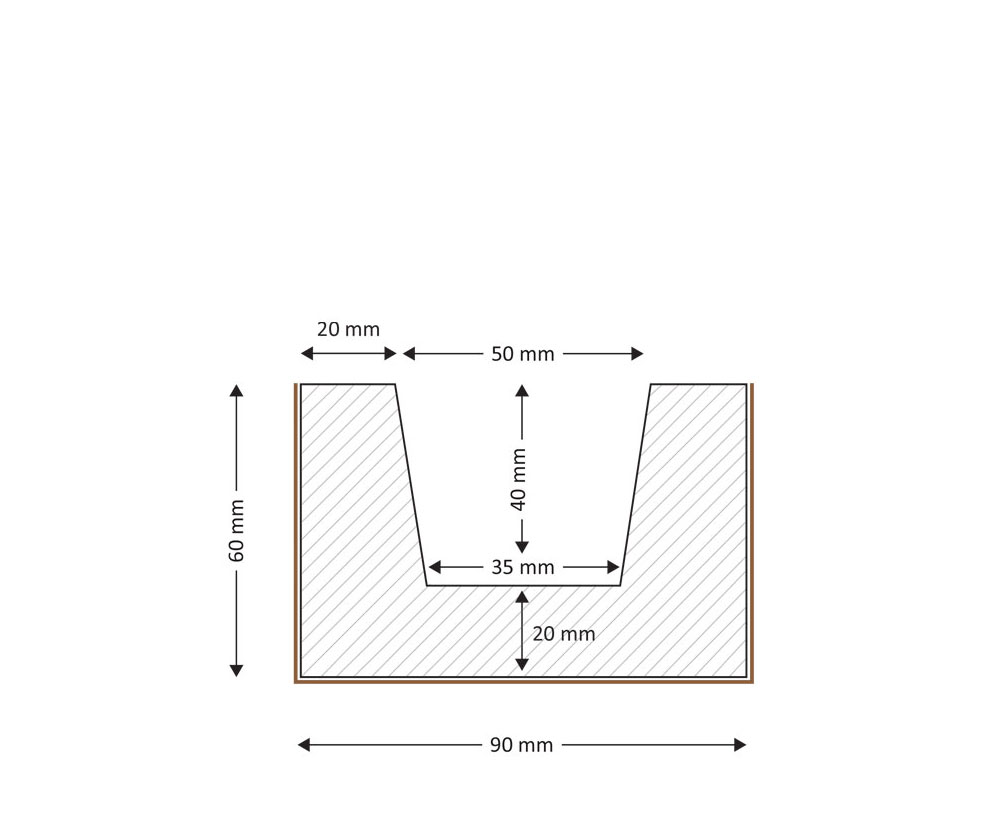
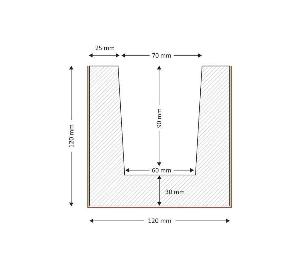
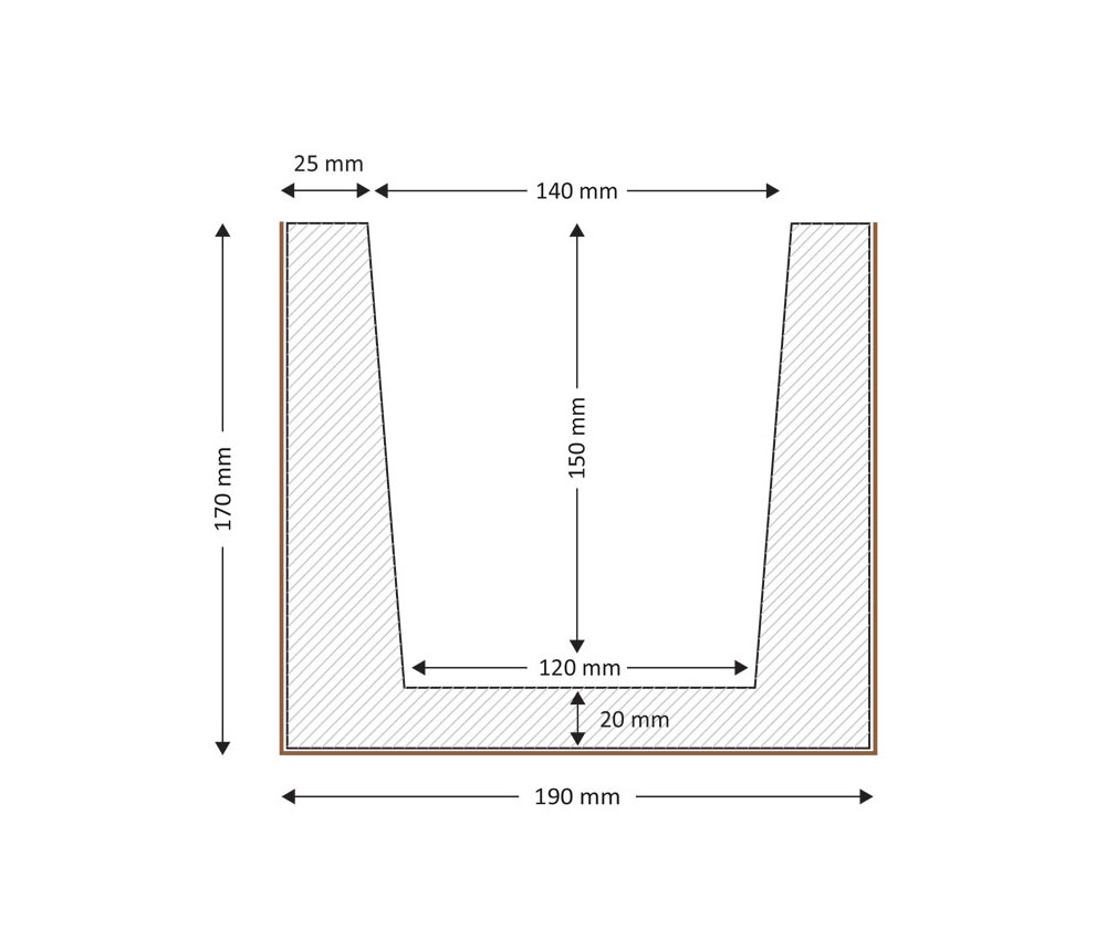
Onze sierbalken die natuurgetrouwe kopieën van echte houten balken zijn, maar gemaakt van een lichtgewicht materiaal polyurethaan, bieden veel voordelen voor interieurs. Deze decoratieve balken zijn vaak nauwelijks van echt hout te onderscheiden en komen in verschillende afmetingen, stijlen en kleuren.
Zowel in klassieke als moderne interieurs geeft hout een gevoel van warmte en authenticiteit. Ze voegen textuur en een natuurlijke sfeer toe, die perfect past bij verschillende interieurstijlen, van rustiek en landelijk tot modern en industrieel.
Rustiek en authentiek
Onbewerkte, ruwe houten balken geven een ruimte een landelijke, traditionele uitstraling. Ze passen goed bij een boerderij-stijl interieur, met warme kleuren, natuursteen en houten meubels. Dit soort balken versterkt een gevoel van authenticiteit en geschiedenis.
Modern en industrieel
In een modern of industrieel interieur kunnen houten balken gecombineerd worden met strakke lijnen, metalen accenten en minimalistische inrichting. Dit creëert een interessant contrast tussen de warme, natuurlijke uitstraling van hout en de koele, strakke materialen van modern design.
Authentieke kunststof sierbalken
Rustieke modellen
Authentieke kunststof sierbalken
Kleuren Rustiek
Authentieke kunststof sierbalken
Moderne modellen
Authentieke kunststof sierbalken
Kleuren Modern
Authentieke kunststof sierbalken
Konsoles voor rustieke sierbalken
Onze sierbalken die natuurgetrouwe kopieën van echte houten balken zijn, maar gemaakt van een lichtgewicht materiaal polyurethaan, bieden veel voordelen voor interieurs. Deze decoratieve balken zijn vaak nauwelijks van echt hout te onderscheiden en komen in verschillende afmetingen, stijlen en kleuren.
Zowel in klassieke als moderne interieurs geeft hout een gevoel van warmte en authenticiteit. Ze voegen textuur en een natuurlijke sfeer toe, die perfect past bij verschillende interieurstijlen, van rustiek en landelijk tot modern en industrieel.
Authentieke kunststof sierbalken
Exclusieve akoestische panelen
NIEUW
PERFO
panelen
NIEUW
WEB
room dividers
NIEUW
ART
panelen
NIEUW
hexagon
panelen
NIEUW
houten panelen
NIEUW
steenstrips met voeg
NIEUW
licht gewicht panelen
NIEUW
gordijnkoven
LED
NIEUW
rustieke
sierbalken
Sierprofielen
Ontdek de collectie
Gipsen verlichting
Ontdek de collectie
Houten panelen
Ontdek de collectie
Akoestische panelen
Ontdek de collectie
Rozetten
Ontdek de collectie
































































